
The Atlantic Diocese of the Anglican Province of Christ The King held their annual meeting at St Albans. The Archbishop and bishops from Atlantic Diocese churches attended.

The Archbishop celebrated mass at St Alban's prior to him conducting the 2025 Atlantic States Diocese SYNOD meetings.

St. Albans Anglican Church Easter Congregation April 17, 2022

A dedication ceremony was conducted September 21, 2014 by Archbishop James E. Province of the Anglican Province of Christ the King along with Bp. John E. Upham of the province of Atlantic States and other clergy as they officially entered the building.

At left: Groundbreaking for the new church building took place on September 20, 2013 at 2 pm. The service was conducted by Archbishop James E. Provence of the Anglican Province of Christ the King (at left). Lady Lake mayor pro-tem Ruth Kussard and council member Fred Hannah are shown along with Deacon Greg Koon, Bishop John E. Upham, Jr. and Deacon Wayne Ogg. The Color Guard of the American Legion (next door) opened the ceremony with the flags and pledge of allegiance.

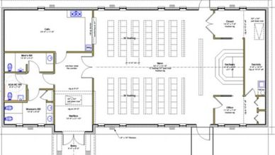
Floor plan of new building on the left.  Overall size is 72 ft long by 34 ft wide.  Seating for 72 people is planned in the Nave.  Altar is to the right (East side).  Entrance at lower left past pillars and into a high ceilinged Narthex.  To the left are restrooms and straight ahead is the kitchen/café/meeting room.

The Reverend Fr. Gregory Koon was Instituted as Rector of St. Albans Anglican Church on January 26, 2020 in a ceremony presided over by the Archbishop of the Anglican Province of Christ the King
St. Alban's Deacon Greg Koon was made priest during the Ordination ceremony on Saturday November 21, 2015 at St. Alban's church on Lady Lake Blvd.  Fr. Koon has been with the church since 2006, was ordained Deacon August 15, 2012, and was approved for nomination to the priesthood during the meeting of the bishops in Tulsa Oklahoma on August 18.  We are proud of the accomplishments of Fr. Koon as he supervised the construction of the new church building this past year, his dedication of a new Memorial Garden and his devotion to members of the congregation in their time of need.
The service was held Saturday morning, November 21, 2015 at 10 am. The Rt. Rev. Dr. John E. Upham, Jr. and other clergy were in attendance to celebrate the Ordination. A reception was held immediately after the service.
First Sunday after Trinity, June 6.  Service is at 9:30 am. 
We're back to serving Coffee and Sweets after the service. It's what you have been waiting for!
Mark your calendars!  Archbishop John Upham will visit and celebrate Mass on Sunday June 20 at 9:30 am.  Please plan to attend this very special event for St. Albans.
HYMNS WILL BE SUNG!
The service will also be available on Zoom. It looks and sounds good.  An invitation will be sent to all at 9 am Sunday.  Give it a try. You will find it easy with a laptop PC or a smart phone.  After the service is underway, right click your mouse on the image of the Altar and select "pin video" which will fill the screen with the Altar image. 
If you need a ride to church call one of the Vestry Members listed on the back of the service bulletin.  They will be gratified that you asked and pleased to give you a ride. 
The 2021 Church Directory is available in print version in the Narthex.  I will gladly mail you a copy if you can't get to church.
First Sunday after Trinity
- The color is White
- The Decalogue will be recited
- The Kyrie is omitted 
- The Gloria is to be sung
- Hymns include 288, 500, 304, and 366 - from recordings
- Readings include 1 St. John iv. 7 and St. Luke  xvi. 19
- The Doxology will be sung
- The Homily will be given by Fr. Greg Koon
- The Agnus Dei will be sung
Prayer List on Service Bulletins - Each week a prayer list is published in the bulletin.  Changes to the list should be sent to Dcn. Steven Holley (Steven.Holley@yahoo.com).  The prayer list includes:
Bill, Megan, Frank, Kevin, Dale, Whitney, Breanna, Tony, Landis, Jeremiah, Hubert, Barbara, 
Ginny & Bill, Lester, James, Scott D, Fred, Jeremy, Kathy, Stacey, and Jimmy & Joyce
The church telephone number is 352-205-8567. When no one is there, it forwards to Fr. Greg Koon.
The Church website is StAlbans.Church or StAlbansAnglicanChurch.net.
The information binder in the church kitchen contains minutes of vestry meetings and monthly financial reports for your perusal along with the Memorial Garden procedures, Canons, Christus Rex (Province newsletter), and other sundry items.
Fr. Greg's Discretionary Fund - If you would like to donate to this fund please write a check to St. Alban's Anglican Church with the notation that it is for this fund.
DO YOU BUY FROM AMAZON?  If so, you can donate to St. Alban's church at no cost to you.  Amazon donates 0.5%  of all your purchases to the church.  Just visit http://www.smile.amazon.com to set it up.
Altar Flowers -  If you would like to dedicate flowers to someone or some event, donate to the Altar Flower fund. please contact Mitzi Hennessey a few weeks in advance so the flowers can be ordered.  Call Mitzi at 352-633-9926 or email mitzi2201965@gmail.com.
---------------------------------------------------------------------------------------------------
Commemorations from the Ordo Kalendar 
Unless noted otherwise most information is from http://www.wikipedia.org ----------------------------
June 9 - St. Columba, Abbot (7 December 521 – 9 June 597) was an Irish abbot and missionary evangelist credited with spreading Christianity in what is today Scotland at the start of the Hiberno-Scottish mission. He founded the important abbey on Iona, which became a dominant religious and political institution in the region for centuries. He is the patron saint of Derry. He was highly regarded by both the Gaels of Dál Riata and the Picts, and is remembered today as a Catholic saint and one of the Twelve Apostles of Ireland.
Columba studied under some of Ireland's most prominent church figures and founded several monasteries in the country. Around 563 he and his twelve companions crossed to Dunaverty near Southend, Argyll, in Kintyre before settling in Iona in Scotland, then part of the Ulster kingdom of Dál Riata, where they founded a new abbey as a base for spreading Celtic Christianity among the northern Pictish kingdoms who were pagan. He remained active in Irish politics, though he spent most of the remainder of his life in Scotland. Three surviving early medieval Latin hymns may be attributed to him.
A great deal of information about Columba may be found at this website: https://en.wikipedia.org/wiki/Columba
June 10 - Saint Margaret of Scotland, Widow  (Scots: Saunt Magret, c. 1045 – 16 November 1093), also known as Margaret of Wessex, was an English princess and a Scottish queen. Margaret was sometimes called "The Pearl of Scotland." Born in the Kingdom of Hungary to the expatriate English prince Edward the Exile, Margaret and her family returned to England in 1057. Following the death of king Harold II at the Battle of Hastings in 1066, her brother Edgar Ætheling was elected as King of England but never crowned. After she and her family fled north, Margaret married Malcolm III of Scotland by the end of 1070.
She was a very pious Christian, and among many charitable works she established a ferry across the Firth of Forth in Scotland for pilgrims travelling to St Andrews in Fife, which gave the towns of South Queensferry and North Queensferry their names. Margaret was the mother of three kings of Scotland, or four, if Edmund of Scotland (who ruled with his uncle, Donald III) is counted, and of a queen consort of England. According to the Vita S. Margaritae (Scotorum) Reginae (Life of St. Margaret, Queen (of the Scots)), attributed to Turgot of Durham, she died at Edinburgh Castle in Edinburgh, Scotland in 1093, merely days after receiving the news of her husband's death in battle.
In 1250, Pope Innocent IV canonized her, and her remains were reinterred in a shrine in Dunfermline Abbey in Fife, Scotland. Her relics were dispersed after the Scottish Reformation and subsequently lost. Mary, Queen of Scots, at one time owned her head, which was subsequently preserved by Jesuits in the Scots College, Douai, France, from where it was subsequently lost during the French Revolution.
Pope Innocent IV canonized St. Margaret in 1250 in recognition of her personal holiness, fidelity to the Roman Catholic Church, work for ecclesiastical reform, and charity. On 19 June 1250, after her canonisation, her remains were transferred to a chapel in the eastern apse of Dunfermline Abbey in Fife, Scotland. In 1693 Pope Innocent XII moved her feast day to 10 June in recognition of the birthdate of the son of James VII of Scotland and II of England. In the revision of the General Roman Calendar in 1969, 16 November became free and the Church transferred her feast day to 16 November, the date of her death, on which it always had been observed in Scotland. However, some traditionalist Catholics continue to celebrate her feast day on 10 June.
She is also venerated as a saint in the Anglican Church.
Much more about St. Margaret of Scotland can be found at: https://en.wikipedia.org/wiki/Saint_Margaret_of_Scotland
Source: http://www.stbarnabasny.org and compiled by Bill Stokes
June 11 - Saint Barnabas, Apostle, was born in Cyprus and died in Salamis in the first century. The Acts of the Apostles describes him as ‘a good man, full of the Holy Spirit and of faith.’ His Jewish parents had named him Joseph, but after he had given away all his money and sold his goods, they renamed him Barnabas, meaning ‘son of consolation’ or ‘man of encouragement.’ Although he was not of the original twelve, he is thought to be among the 72 commissioned by Jesus to preach; thus, he was given the honorarium, “Apostle.” St. Barnabas is venerated as the Patron Saint of Cyprus.
Barnabas the Apostle is remembered in the Church of England with a Festival on 11 June.
Barnabas lived with Jerusalem’s earliest Christians, and welcomed Saint Paul, a classmate and who was a former persecutor of the early Church. Barnabas persuaded the Chstians to accept the changed Paul who now accepted Jesus. Barnabas was sent to Antioch, Syria, to investigate the community of non-Jewish believers there, and brought Paul there from Tarsus. It was at Antioch the followers of The Way were first called “Christians.”
Thereafter, Barnabas joined his cousin John Mark, and Paul returned to Antioch before setting out together on the Christian Church’s first-ever missionary journey. Barnabas’ native land was Cyprus, and he was honored to found the first Cypriot church. During their sojourning preaching to the pagans, they were mistaken for gods, by virtue of the miracles Barnabas worked, and by his physical beauty. After being taken as pagan gods, they were stoned out of the city of Lystra in Lycaonia, and fled back to Antioch.
Upon their return to Antioch, Barnabas implored Paul and John Mark to continue their travels with him, but Paul had a falling out with John Mark. Taking Mark’s side, Barnabas illustrated Acts’ declaration that Barnabas was a man of considerable determination and courage. Paul chose a new ally in Silas, and went elsewhere to strengthen the churches. Little more is heard of Barnabas although it is believed the rift with Paul was healed because we read about Barnabas (in 1 Corinthians 9:6). Paul also discusses his relationship to Barnabas in his letter to the Galatians.
Barnabas, stoned to death at Salamis about 61 AD, is considered the founder of the Cypriot Church, and preached in Alexandria and Rome.
More information may be found at:  https://en.wikipedia.org/wiki/Barnabas 
June 11 - The Feast of the Sacred Heart of Jesus is a solemnity in the liturgical calendar of the Latin Church. It falls 19 days after Pentecost, on the third Friday after Pentecost. The earliest possible date is 29 May, as in 1818 and 2285. The latest possible date is 2 July, as in 1943 and 2038. The devotion to the Sacred Heart is one of the most widely practiced and well-known Catholic devotions, taking Jesus Christ's physical heart as the representation of his divine love for humanity.
The Catholic acts of consecration, reparation, and devotion were introduced when the feast of the Sacred Heart was declared. In his papal bull Auctorem fidei, Pope Pius VI praised devotion to the Sacred Heart. Finally, Leo XIII in his encyclical Annum Sacrum (25 May 1899), as well as on June 11, consecrated every human to the Sacred Heart. The idea of this act, which Leo XIII called "the great act" of his pontificate, had been proposed to him by a nun of the Good Shepherd from Oporto (Portugal) who said that she had supernaturally received it from Jesus. Since c. 1850, groups, congregations, and countries have consecrated themselves to the Sacred Heart. In 1873, by petition of president Gabriel García Moreno, Ecuador was the first country in the world to be consecrated to the Sacred Heart.
Ireland was consecrated to the Sacred Heart on Passion Sunday 1873 by the bishops of Ireland, which led to the Sacred Heart lamp becoming a common devotional object in Irish homes.
Peter Coudrin of France founded the Congregation of the Sacred Hearts of Jesus and Mary on 24 December 1800. A religious order of the Latin Church, the order carried out missionary work in Hawaii.
Mother Clelia Merloni from Forlì (Italy) founded the Congregation of the Apostles of the Sacred Heart of Jesus in Viareggio, Italy, on 30 May 1894.
Worship of the Sacred Heart mainly consists of several hymns, the Salutation of the Sacred Heart, and the Litany of the Sacred Heart. It is common in Roman Catholic services and occasionally is to be found in Anglican services.
The Feast of the Sacred Heart, in the Catholic liturgical calendar since 1856, is now a solemnity and is celebrated on the third Friday after Pentecost (formerly the Friday after the octave of Corpus Christi).
Please let the editor of this weekly eNewsletter know if it is useful to you, or not, or have suggestions on how to improve it, or would like to be involved in writing it.  
Thank you.
--------------------------------
Keeping the Faith,
Ed Williams

The America-based Anglican Province of Christ the King (APCK) follows the teachings of Jesus Christ and celebrates historic Christianity in the Anglican tradition. We base our beliefs on the Bible and the time-honored creeds of the Church.
St. Alban’s is a member of the Diocese of the Atlantic States of the Anglican Province of Christ the King (APCK) based in San Francisco, CA.
The Very Rev. Dr. John E. Upham, Jr., Archbishop
http://www.anglicanpck.org
Copyright © 2024 StAlbansAnglicanChurch - All Rights Reserved.
Website Designed by www.SitesbyJacki.com